Treppenbau

Für das 1:50-Zerstörer-Modell von USS CASSIN YOUNG (FLETCHER-Klasse aus dem WWII) hatte ich viele Steigeisen, Leitern und auch drei Treppen zu bauen. Die Treppen finden wir am hinteren Ende vom vorderen Deckshaus. (kleine Fotos anklicken) Zwei führen vom Hauptdeck zum ersten Aufbaudeck und eine dritte, sie ist zwei Stufen länger, führt an Steuerbord am Pfahlmast vorbei hoch zum Brückendeck. Den Bau dieser Treppen möchte ich ausführlich beschreiben. Es ist der Bau dieser drei Treppen, andere Treppen an vielleicht ganz anderen Schiffen muß man selbstverständlich anders bauen.

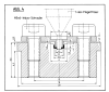
Ich habe mich beim Bau an die vielen Fotos gehalten, welche ich von den Booten der FLETCHER-Klasse gesammelt bzw. auch schon 2003 selbst angefertigt habe. Alle Deckshäuser waren zum Zeitpunkt des Treppenbaues rohbaufertig, sodaß ich für die nötige Zeichnung (Abb. 1) in doppelter Größe, also im M 1:25, konkrete Maße ermitteln konnte. Ebenfalls in 1:25 habe ich eine Zeichnung von den Treppenwangen mit ihren ovalen Durchbrüchen angefertigt (Abb. 2) (selbstverständlich als verkürzte Darstellung). Im unteren Teil der Zeichnung habe ich gleichzeitig die Geländer/Handläufe mit dargestellt. Und weil ich diese Wangen mit ihrem U-förmigen Querschnitt aus 0,2-mm-Messing-Blech prägen wollte, habe ich vor dem Baubeginn auch eine Vergrößerungs-Zeichnung vom Querschnitt eines Prägewerkzeugs mit dem (geschwärzt) eingezeichnetem Wangen-Profil gefertigt (Abb. 4) . Erst danach konnte ich mit dem im Voraus geplanten Bau beginnen. Die nötigen Zeichnungen müssen nicht, wie ich sie hier nur für diesen Beitrag, druckfähig ausgeführt werden. Maßstäbliche Skizzen mit spitzem Bleistift genügen.

Seitenwangen herstellen

Zuerst wurde die Druckleiste (schmal schraffiert in Abb. 4) gefräst (Abb. 5) . Sie erhielt schon sechs 3,3-mm-Bohrungen. Die Leiste in der Mitte ist exakt 2,1 mm breit und 1,5 mm hoch. Dann konnte das Unterteil (weit schraffiert in Abb. 4) mit seinen beiden Auflagestufen (a in Abb. 6) gefräst werden. Auf diese Stufen wird das Teil bei allen weiteren Arbeitsgängen (auch beim Prägen usw.) in gleicher Richtung im Schraubstock gespannt. Die Prägenut (b) wurde ohne Verstellung des Y-Supports (!) mit einem 4-mm-Fingerfräser (oben 0,4 mm tief) und anschließend mit einem 2,5-mm-Fingerfräser (unten noch 1 mm tiefer) über die ganze Länge in der Mitte eingefräst. Man fräst derart genaue Nuten nur mit Spantiefen von max. 0,2 mm, damit der Fräser nicht seitlich „ausbricht“, unsere Maschinchen sind nicht sehr stabil! In die obere Nut habe ich zwei kleine 3,9 mm breite 0,2-mm-Ms-Blechstücke (a in Abb. 7) gelegt und dann das Oberteil von Hand eingedrückt (Abb. 8) . Mit einem 3,3-mm-Zentrierkörner konnte ich so die sechs Bohrungen vom Oberteil auf das Unterteil übertragen (Abb. 9) und danach die 2,4-mm-Kernlochbohrungen für M3-Innengewinde als Durchgangslöcher bohren (Abb. 10) . Bei Abb. 11 sind die M3-Gewinde bereits geschnitten und die Prägeleiste (p) ist mit einer Breite von ebenfalls 2,1 mm Breite angefräst. Diese Prägeleiste muß vor allem eine ausreichende Höhe haben, damit sie sich beim kraftaufwendigen Prägen nicht den geringsten Betrag verbiegen kann. Ein Halter (h in Abb. 12) für das Spannen im Zangenfutter der Fräsmaschine wurde gedreht und die Prägeleiste erhielt noch zwei Stufen (s), damit sie in diesem Halter ebenfalls nicht verrutschen kann.

Wieder wurden zwei kurze 0,2-mm-Blechstücke (b in Abb. 13) eingelegt, der Halter (h) im Zangenfutter gespannt und nun das Unterteil (u) und die Prägeleiste (p) zusammengefahren. Wenn alle Maße eingehalten wurden, so klemmen die beiden Blechstücke, wie in Abb. 13 zu sehen, nach dem Auseinanderfahren an der Prägeleiste. Erst im zusammengefahrenen Zustand wird der Schraubstock auf dem Fräsmaschinentisch und zusätzlich beide Tischsupporte geklemmt, damit sich nichts mehr verstellen und verschieben kann.

In der Zwischenzeit hatte ich aus 0,2-mm-Ms-Blech auf meiner „getunten“ Fotoschere (aufmerksame Leser meiner Homepage kennen sie!) 3,9 mm breite Streifen geschnitten (die Einlegenut ist 4 mm breit!). Sie wurden nun nacheinander in das Prägewerkzeug gelegt und zu U-Profilen gedrückt. Abb. 3 verdeutlicht den Vorgang. Die Rohlinge für die Treppenwangen sind fertig (Abb. 14) . Vor dem anschließenden Fräsen der Langlöcher muß der Schraubstock gut ausgerichtet werden. Dazu habe ich einen Zentrierdorn (Abb. 15) gedreht, welcher mit den zwei Absätzen gut in die Nuten vom Unterteil paßt. Dieser Dorn wurde mit der Bohrpinole etwa in der Mitte der Länge vom Unterteil in dieses gefahren, ein Anschlagwinkel (rechts vom Bild 16) diente dem Ausrichten. Erst in dieser Stellung (!) habe ich mit Spanneisen den Schraubstock auf dem Tisch geklemmt. So war er auch für das folgende Fräsen der Langlöcher in die Wangen ausgerichtet. Mit einem 4-mm-Fingerfräser wurde zuerst der obere Teil der Druckleiste (Maße 4 und 0,7 Abb. 4) in den entsprechenden Abständen freigefräst (Abb. 17) . Das mache ich, damit der folgende 1-mm-Fingerfräser weniger „Arbeit“ hat. Das waren insgesamt neun Langlöcher, damit ich auch die beiden Wangen für die längere Treppe herstellen kann. Nun konnten mit dem 1-mm-Fräser die Wangen für alle drei Treppen gefräst werden (Abb. 18) . Auch hier wieder nur in max. 0,2-mm-Spantiefen. Man fährt dabei die gleichen Skalenwerte vom X-Support an, welche man sich schon beim Fräsen mit dem 4-mm-Fräser notiert hatte! Dies war hier einfach, denn die Abstände betrugen je 3 mm (vgl. Abb. 2).

Nach einer Freibohrung am linken (am Modell oberen) Ende der Wangen wurden nun 0,5-mm-Bohrungen in diese gebohrt (Abb. 19) . In Abb. 20 sind nur vier Wangen zu sehen. Mit einem schlagzahngefrästen (1) Anreißstück mit eingestecktem 0,5-mm-Draht (Abb. 21) habe ich die konischen Anrisse (und die kleinen Rundungen) auf die Innenseiten (Außenseiten der U-Profile!) der Wangen aufgerissen (Abb. 22) und danach so angearbeitet (Abb. 23) . Der Winkel an jeder Seite beträgt 9° (vgl. Abb. 2). Rechts oben sind die ebenfalls schlagzahngefrästen (1) Scharnierteile mit fotografiert, mit denen diese Leitern am oberen Deck fest sind. Diese U-förmigen Teile sind dann auf kleine Platten gelötet (Abb. 24) . In meiner Zeichnung Abb. 2 fehlen diese Platten allerdings.

Treppenstufen herstellen

Als nächstes habe ich die Treppenstufen angefertigt. Von schlagzahngefrästen (1) Profilen (Abb. 25) wurden die Teile 0,45 mm dick abgesägt (Abb. 26) . In Abb. 27 sieht man oben die Reststücke. Die 0,45 mm Dicke im M 1:50 entspricht eigentlich 22,5 mm Dicke beim Original. Am Original sind diese Treppen/Stufen jedoch aus max. 5 mm dickem Blech zusammengeschweißt. Beim Modell sieht man die Stufen jedoch nie (oder kaum) von unten. Deshalb kann man die 0,45-mm-Dicke so lassen. Eine langsam rotierende, etwas schrägstehende Blechbüchse ist innen mit Schmirgelpapier ausgekleidet. Darin sind alle Teile mit ihrem Grat an den Kanten und kleine Würfel (4 x 4 mm) von gehärtetem (!) Silberstahl. So werden die Teile in etwa zwei bis drei Stunden sauber entgratet (Abb. 28) .

Jetzt wird die Lötvorrichtung für das Zusammenlöten der Wangen und Stufen hergestellt. An einem Hartpapier-Klotz (Novotex) wird die obere Fläche überstirnt und zwei Stufen werden angefräst (Abb. 29) . Bei dem Foto sieht man am rechten Ende längs helle Linien, das ist nichts weiter als ein Riß im Material. Die Breite des oberen Teils entspricht der Länge der Stufen minus exakt 0,1 mm. Dieser Klotz wird auf der Seite liegend gespannt und in 12-mm-Abständen (das macht ja die Fräsmaschine per Koordinaten-Bohren nahezu auf 0,01 mm genau) werden 1,2-mm-Bohrungen in der Mitte der Stufen quer durchgebohrt (Abb. 30) . Zusätzlich werden zwei 4 mm breite Klemmleisten aus 1,5-mm-Pertinax (Hartgewebe) hergestellt. Diese erhalten ebenfalls in 12-mm-Abständen 1,2-mm-Bohrungen (Abb. 31) . Die Lötvorrichtung wird nun mit Hilfe eines Feintasters im Schraubstock am Ende der Schraubstockbacken exakt senkrecht stehend geklemmt (Abb. 32) . So vorbereitet können nun mit einer entsprechend schräggestellten (nach Abb. 2 sind das 22,5°) 0,5-mm-Metallkreissäge die Schlitze für die Stufen in 6-mm-(Höhen-)Abständen eingesägt werden (Abb. 33) . Die Tiefe wird einmal eingestellt und bleibt für alle Schlitze so stehen. Fünf selbstgedrehte M1-Schrauben und eine Abstandrolle (Abb. 34 ganz rechts mit Drahtstift) halten nun die Wangen und Stufen für das Löten mit Lötwasser (!) in der Lötvorrichtung exakt zusammen. In Abb. 35 ist teils noch reichlich überschüssiges Lötzinn zu sehen. Dieses wird noch in der Vorrichtung (!) abgearbeitet. Dazu kann man an der jeweiligen Seite auch den Pertinax-Streifen entfernen (Abb. 36) . Die Schraubenköpfe haben nur einen Ø 2, passen also in die U-Schiene, deren Innenmaß ja 2,1 mm war. Besonders so zierliche Teile muß man zum Entfernen des Lötzinns gut festhalten können. In Abb. 37 ist eine Treppe an die Druckleiste (Abb. 5) geschraubt. So konnte ich das Zinn auch gut von den Innenseiten der Wangen entfernen. Ist alles sauber verputzt, sieht es nach Abb. 38 schon gut aus. In Abb. 39 habe ich die Treppe mit den oberen Scharnieren schon einmal an das Modell gestellt. Links neben der Leiter sieht man übrigens im Rohbau die beiden Isolierschächte für die Langdrahtantennen des Zerstörers. Oben ist ein provisorischer Draht in die „Scharniere“ gesteckt.

Geländer anbauen

Als Nächstes baue ich noch die seitlichen Geländer an die Treppen. Das beginnt mit der Herstellung von sechs Stützen (f in Abb. 2)(Abb. 40 ). Sie werden aus Messing gedreht und oben löte ich T-förmig kurze Buchsen (e in Abb. 2) rechtwinklig an (Maße in Abb. 2). Aus 0,5-mm-Kupferdraht biege ich die Handläufe und auf einem Stück Millimeterpapier werden die Stützen mit je einem winzigen Tropfen Sekundenkleber befestigt. Dabei dient mir eine Linie auf dem Millimeterpapier (schwarz in Abb. 41 eingezeichnet) als Ausrichthilfe. In Abb. 42 sind die Teile fertig zu sehen. An die oberen Enden der Handläufe wurden noch U-förmige „Ösen“ angelötet (g in Abb. 2)(Abb. 43 ). Auch diese Ösen sind, so klein wie sie sind, schlagzahngefräst (1), kein anderes Verfahren macht sie so genau und schön. Hier werden später bei der Endmontage am Modell feine Ketten angeschäkelt (vgl. dazu „Miniaturketten“). Das Anlöten der Geländer exakt im Winkel habe ich in meinem großen Lötprisma (aus Pertinax) gemacht (Abb. 44 ), ebenfalls wieder mit einem 100-Watt-Lötkolben (mit sorgfältig gepflegter Spitze), damit die Lötung an den Wangen extrem schnell geht! Verwende ich einen zu schwachen Lötkolben, muß ich zu lange „heizen“ – und alles fällt wieder auseinander. (Wertvolle Hinweise zum Löten von Modellteilen, also nicht nur für das einfache Bestücken von Leiterplatten, wie das in "Das große Lötbuch" hoch wichtig "beschrieben" wird, bietet mein Kapitel „Messingblech im Modellbau“ in meinem A4-Heft „Modellbautechniken“. Sie erhalten dieses Buch inzwischen nur noch von mir als sog. E-Book, Best.-Nr. cd046)

Unten am Deck liegen die Wangen an besonders geformten Stützen an. Für diese besondere Form wurden zwei Profile schlagzahngefräst (1) (Abb. 45 ) und das Prisma mit der Rundung (rechts) vom Spannzapfen abgesägt und an jenes mit dem dreieckigen Querschnitt angelötet (Abb. 46 und 47 ). Die Teile wurden wie üblich auf 1 mm Dicke, wie schon in Abb. 26 zu sehen, abgesägt (Abb. 48 ) und danach mit 2-K-Kleber an rechteckige Platten (1) geklebt (Abb. 49 ).

Alle drei Leitern sollen in der gleichen Schräglage stehen. Die unteren Enden der Wangen stehen dabei nicht auf dem Deck auf. Mit einer Winkelschablone aus Pappe und kleinen Zwischenlagen (a in Abb. 50 ) wurden diese Schräglagen eingerichtet. Die Stützen (Abb. 49) werden vorsichtig an die Wangen herangeschoben und mit winzigsten Tropfen Sekundenkleber (an der Spitze eines 0,3-mm-Drahtes) nur am Deck befestigt. In Abb. 51 ist die Treppe etwas angehoben. Ich vermute, daß die Treppen im Gefecht angehoben werden, damit sie keineswegs „im Weg stehen“. Die großen Kästen neben dem Mast in Abb. 52 sind die Flaggenstelle zur Aufbewahrung und Trocknung der Signalflaggen. Daher auch die großen Löcher an den unteren Rundungen.

Jürgen Eichardt

Weiterführende Literatur:

(1)   Jürgen Eichardt, „Fräsen mit der Drehmaschine“, VTH-Verlag 2000, ISBN 3-88180-099-9, VTH-Best.-Nr. 310 2099

 Bildtexte: (alle Fotos: Jürgen Eichardt)

Foto 05: Die gesamte obere Seite muß in einer Einspannung fertiggefräst werden. Dabei auch die sechs Löcher per Koordinaten-Bohren einbringen.

Abb. 06: Auch hier obere Fläche und Nut in einer Einspannung fräsen.

Abb. 07: Gleiches Blech, wie später die Wangen.

Abb. 08: Druckleiste und Unterteil.

Abb. 09: Selbst gedrehte und gehärtete Zentrierkörner aus Silberstahl in 0,1-mm-Durchmesser-Stufungen sollte jeder Modellbauer haben.

Abb. 10: Bei Messing stets erst mit neutral (Spanwinkel 0°) geschliffenen Bohrern vorbohren.

Abb. 11: Hier liegt kein Blech in der Nut.

Abb. 12: Der Spannzapfen darf recht kräftig sein.

Abb. 13: Für große Stückzahlen macht man die Teile besser aus Stahl.

Abb. 14: Eine Alternative wäre, die U-Schienen zu fräsen.

Abb. 15: Hier steht der Zentrierzapfen nur zur Verdeutlichung am Ende der Nut.

Abb. 16: Ausrichten der Schraubstock-Backen zur X-Zugrichtung der Fräsmaschine.

Abb. 17: Neun 4-mm-Freifräsungen.

Abb. 18: Die gefräste Wange liegt noch in der Nut.

Abb. 19: Im Bild ein abgesetzter 0,5-mm-Wendelbohrer.

Abb. 20: 0,5-mm-Bohrungen am oberen Ende der Wangen.

Abb. 21: Wenn man das Schlagzahnfräsen beherrscht, ist solch ein „Stein“ schnell gefertigt.

Abb. 22: Angerissene konische Konturen.

Abb. 23: Alle Teile sauber entgratet.

Abb. 24: Mit angelöteten Platten.

Abb. 25: Mein 1. Buch „Fräsen mit der Drehmaschine“ macht´s möglich.

Abb. 26: Im Vierstahlhalter klemmt eine Säge-Halterung.

Abb. 27: Exakter kann man die Teile anders nicht fertigen.

Abb. 28: Schon jahrelang im Gebrauch: meine Entgratungs-Trommel. Die Büchse hängt mit dem Boden an einem kleinen Getriebemotor.

Abb. 29: Man fräst (oder auch dreht) möglichst viel in einer Einspannung.

Abb. 30: Koordinaten-Bohren auch hier, wegen exakter Abstände.

Abb. 31: Unten liegt eine Wange auf dem Vorrichtungs-Rohling.

Abb. 32: Zu jeder Fräsmaschine gehört ein Feinmeßtaster.

Abb. 33: 0,5-mm-Metallkreissäge im Eigenbau-Sägedorn.

Abb. 34: In der Lötvorrichtung können die Stufen nicht verkanten, auch die Abstände und die Schräglagen sind „bestimmt“, wie der Werkzeugmacher sagt.

Abb. 35: Hier die Mutternseite der Vorrichtung.

Abb. 36: Die Schraubenköpfe sind ausreichend lang.

Abb. 37: Innenseiten „entzinnen“.

Abb. 38: Die Wangenteile hatte ich bereits mit dem Laserstrahl schneiden lassen, habe sie aber dann doch selbst hergestellt.

Abb. 39: Die Stufen sieht man in der Regel nur von oben, daher konnte ich sie „massiv“ machen.

Abb. 40: Auch diese Lötungen müssen sauber „entzinnt“ werden.

Abb. 41: Millimeterpapier verwende ich gern als Ausrichthilfe.

Abb. 42: Die Bögen sind um einen kleineren Dorn (Durchmesser austesten!) geformt.

Abb. 43: Die Treppen hier noch ohne Spritz-Lackierung.

Abb. 44: Ein Lötprisma aus Pertinax (verträgt gut die Löt-Temperaturen) fräst man mit einem 45° schräggestellten Walzenstirnfräser.

Abb. 45: Relativ viel Materialverbrauch, aber hochgenaue Teile!

Abb. 46: Das Prisma mit der Rundung wird zum Löten mit einer Reißnadel festgehalten.

Abb. 47: Auch hier sieht man kaum etwas vom Lötzinn.

Abb. 48: Man erkennt kaum, daß es je zwei Teile sind.

Abb. 49: Sekundenkleber verwende ich ungern, weil er nicht gut hält.

Abb. 50: Anpassen der Schräglagen am Modell.

Abb. 51: Die beiden Stützen unten sind hier schon an das Deck geklebt.

Abb. 52: Inzwischen ist der Detailbau an den Deckshäusern schon viel weiter vorangeschritten.

zurück/back  |  home