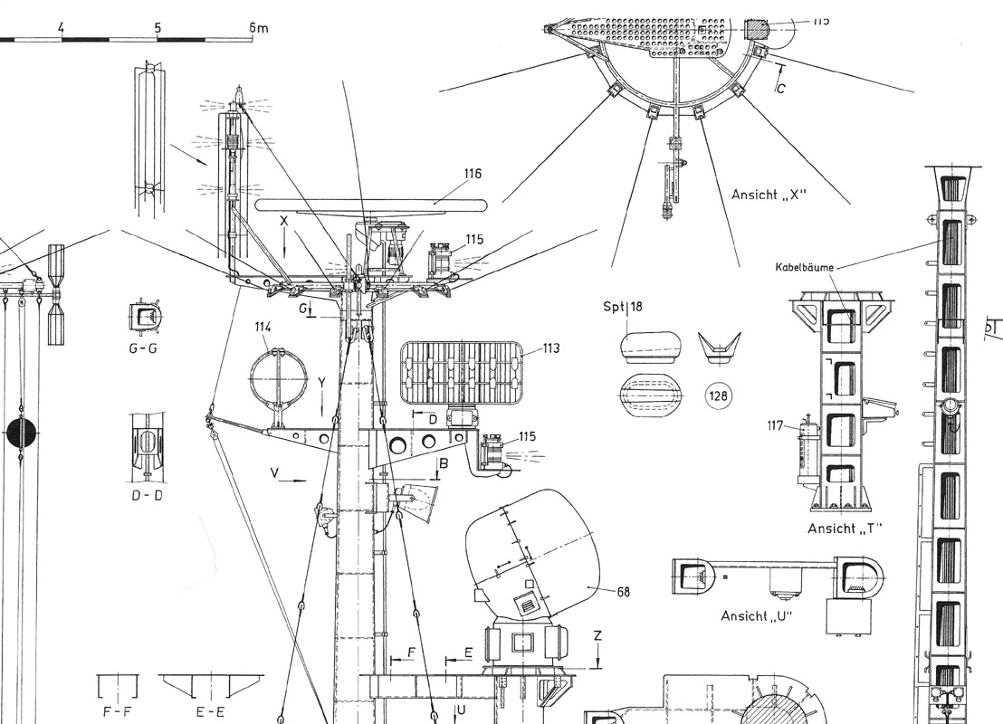
U-Jäger OBLUZE-Klasse

submarine chaser OBLUZE-class

Modellmaßstab 1:20

model-scale 1:20

Herrlicher U-Jäger der polnischen Seekriegsflotte (NATO-Code: OBLUZE-Klasse), Nachfolger der GDANSK-Klasse (Bestell-Nr.: pl026). Hochdetaillierte Darstellung selbst kleinster Einzelheiten in diesem großen Maßstab, einer meiner besten Pläne! Fotoauswertung von Hunderten Großfotos. Offener Fahrstand mit div. Geräten und andere Details sind eine echte Herausforderung für den ernsthaften Schiffsmodellbauer. Alternative Spantenrisse in den Maßstäben 1:25, 1:33,33, 1:50 und 1:60 sind im Plansatz enthalten. Maße des Modellrumpfes: 2.100 x 304 x 84 (Tiefgang) mm, Modellgewicht: 23,30 kg, 2 Propeller, 8 Planbögen. Im Preis ist eine Foto-CD-ROM mit 50 Original-Detailfotos enthalten!

Magnificent submarine chaser of the polish navy (NATO-Code: OBLUZE-class), replacing the GDANSK-class (see order-Nr.pl026). High-detailed even the smallest part in this big scale are drawn. One of my best plan! I used hundred of photos, open pilot room with several armatures to build, this is a challenging and even knowledgeable builders will have a lot to do. Alternative body plans are on a scale 1:25, 1:33,33, 1:50 and 1:60. Model-hull-size: 2.100 x 304 x 84 (draught) mm, model-weight: 23,30 kg, 2 propellers, 8 sheets, photo-CD-ROM enclouded (50 detail-photos)!

Planausschnitte / plan sections

 

1:20-Modell von Peter Jedwabski / 1:20-model of Peter Jedwabski

Detail Sommerfahrstand (Jedwabski-Modell) / detail open pilot room (Jedwabski-model)

Spantenriß / body plan

...und das Modell von Marko Dittrich...

Küstenschutzboot ZEFIR

coast guard boat ZEFIR

 Modellmaßstab 1:25

model-scale 1:25

Küstenschutzboot der polnischen Grenztruppen. Modellplan, entwickelt aus dem Plansatz pl020 (OBLUZE-Klasse /siehe oben). Ebenfalls einer meiner besten Pläne. Spantenrisse auch im M 1:50 und 1:33,33, Maße des Modellrumpfes: 1.680 x 242 x 67 (Tiefgang) mm, Modellgewicht: 12,00 kg, 2 Propeller, 3 Planbögen und diverse Planblätter. Mit dem Plansatz erhalten Sie eine Foto-CD-ROM mit 50 Original-Detailfotos (im Preis enthalten)!

Coast guard boat of the polish border troups. Model plan developed out of the plan set pl020 (OBLUZE-class / see above). Also one of my best plans. Body plans also in a scale 1:50 and 1:33,33, model-hull-size: 1.680 x 242 x 67 (draught) mm, model-weight: 12,00 kg, 2 propellers, 3 sheets and diverse plan pages (photo-CD-ROM with 50 photos enclouded).

Planausschnitt / plan section

zurück/back  |  home

über mich  |  Modellbau  |  Modellpläne  |  Schiffsdetail-Zeichnungen  |  Bücher  |  CD-ROMs  |  Werkstatt  |  Maschinen-Zubehör  |  Kontakt